viapolis > Références
Fédération Française d'Équitation
Étude d'opportunité pour la présentation de sites alternatifs pour la tenue des épreuves équestres des JO2024

Fédération Française d'Équitation - Osmose Ingénierie
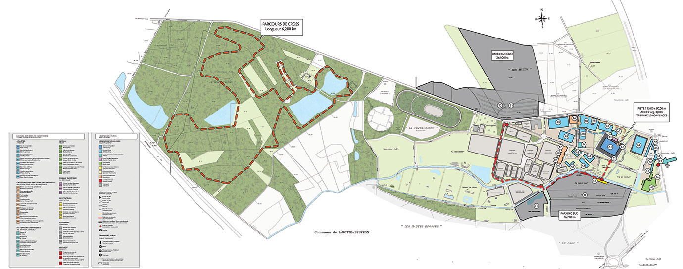
La Fédération Française d'Équitation souhaite faire réaliser une étude d'opportunité afin de présenter en deux dossiers séparés, les sites du Parc Equestre Fédéral à Lamotte-Beuvron et de l’hippodrome de Longchamp comme des sites susceptibles d’accueillir les épreuves de Jeux Olympiques de 2024 dans les meilleures conditions.
Contenu de l’opération

Plan d'organisation du site de Lamotte-Beuvron - Osmose Ingéniere
Recherche par critères
Vous avez une question ou souhaitez confier votre projet à Viapolis…
Nous contacter